专家好,我是小爱,正在CAD中,三维图形比二维繁复不少,固然只众了一个面,通过少许实例来渐渐学会三维的少许操作。如矩形和圆构成的三维图形的画法,那么CAD若何画矩形和圆构成的三维图形呢?下面教程来一步步操作给专家看。
器械/软件
硬件型号:华为MateBook D 14
体例版本:Windows7
所需软件:CAD2007
手法/设施第1步
双击翻开桌面上的AutoCAD 2007软件。
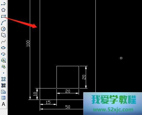
第2步
单击视图菜单→三维视图→主视,用矩形器械按尺寸绘制出两个矩形。
第3步
用圆器械绘制出一个圆。
第4步
单击面域器械,框选矩形和圆实行面域。
第5步
标注器械处右击选实体编辑,显示实体编辑器械,选差集选大矩形,确定,再选小矩形和圆,确定。
第6步
选视图菜单→三维视图→东南等轴测,单击画图菜单→修模→拉伸。输入拉伸间隔20,确定。
第7步
视图菜单→视觉样式→观念。
小心/提示
好了,本次合于“CAD若何画矩形和圆构成的三维图形?”的齐备实质就分享到这里啦,生气小爱分享的实质可能助助到专家。同时可能合怀我爱学教程,遭遇不懂的题目可能正在这里寻找到周密的管理手法。

还没有评论,来说两句吧...